Новости

Ремонт коробки переключения передач КПП АМКОДОР ТО-18, ТО-28, ТО-30

Ремонт КПП ТО-18, Ремонт КПП ТО-28, Ремонт КПП ТО-30. Ремонт коробки переключения передач КПП АМКОДОР ТО-18, ТО-28, ТО-30

Гидромеханическая передача ГМП фронтальных погрузчиков ТО-18/ТО-18Б Амкодор 333 предназначена для установки в трансмиссиях с целью передачи потока мощности до 100 кВт от двигателя на привод ведущих мостов с преобразованием крутящего момента и частоты вращения по величине и направлению. ГМП погрузчиков ТО-18/ТО-18Б Амкодор 333 обеспечивает:

— переключение передач под нагрузкой и отсоединение двигателя от ведущих колес (нейтральная передача);
— автоматическое бесступенчатое регулирование скорости и тягового усилия на каждой передаче в пределах коэффициента трансформации и передаточного числа гидротрансформатора.

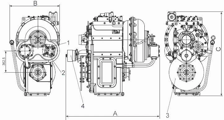
ГМП погрузчиков ТО-18/ТО-18Б Амкодор 333 (рис. 8) состоит из двух преобразователей: гидравлического 24 ( ГТ) и механического 17 (КПП), а также гидравлической системы. Гидромеханическая трансмиссия (ГТ) фронтальных погрузчиков представляет собой агрегат, который передает механическую энергию через циркулирующий поток жидкости и автоматически бесступенчато изменяет в определенных пределах передаваемый крутящий момент в зависимости от внешней нагрузки.

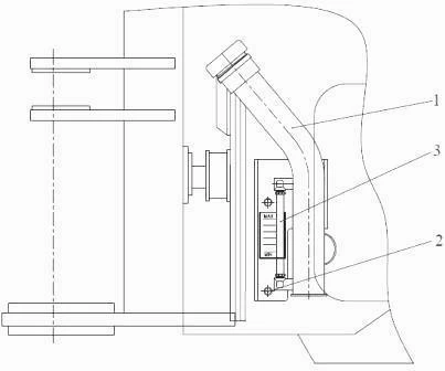
ГТ обеспечивает устойчивую работу двигателя при изменении внешней нагрузки, сглаживает динамические нагрузки и увеличивает долговечность двигателя и трансмиссии. КПП фронтальных погрузчиков ТО-18/ТО-18Б Амкодор 333 представляет собой агрегат, который преобразует крутящий момент и частоту вращения по величине и направлению. Преобразование осуществляется с помощью зубчатых передач постоянного зацепления ступенчато – от передачи к передаче. Переключение передач в пределах каждого диапазона производится под нагрузкой многодисковыми фрикционными муфтами – фрикционами, а с диапазона на диапазон – зубчатой муфтой. Для питания ГТ и управления фрикционами КП в ГМП фронтальных погрузчиков ТО-18/ТО-18Б Амкодор 333 имеется гидравлическая система, агрегаты которой установлены как на ГМП (насос 18, фильтр тонкой очистки 5, блок клапанов 19, распределитель 20, клапан смазки 21), так и вне ее (система механического привода управления, внешняя часть гидравлической системы – магистральный фильтр, теплообменник, заливная горловина (для некоторых исполнений ГМП), трубопроводы и контрольно-измерительные приборы). В настоящее время выпускаются исполнения ГМП с заливной горловиной 1 (рис. 11), которая крепится на раме машины.

ГМП фронтальных погрузчиков ТО-18/ТО-18Б Амкодор 333 может оснащаться:

— гидротрансформаторами c активными диаметрами 340 мм (как с литыми алюминиевыми лопастными колесами, так и штампосварными) или 280 мм со штампосварными лопастными колесами;

— дополнительным независимым приводом (от входного вала ГМП), например, на насос гидросистемы тормозов (рис. 9); коробкой передач (КПП), имеющей 4 варианта силового диапазона по передаточным числам;

— отключением привода на один мост, когда водитель-оператор, в зависимости от условий работы, может отключать мост (рис.10 б); дополнительным зависимым приводом (от выходного вала коробки передач), например, на аварийный насос гидросистемы рулевого управления (рис.11);

— стояночным тормозом, который предназначен для затормаживания машины на стоянках и может применяться в качестве аварийного в случае выхода из строя рабочих тормозов (рисунок9);

— дополнительным редуктором на выходе для ведущего моста (рис. 12).

Рис. 8 — Гидромеханическая передача фронтальных погрузчиков ТО-18/ТО-18Б Амкодор 333 без отключения моста.

1 — золотник включения быстрой нейтрали; 2 — золотник изменения направления движения; 3 — золотник включения передач переднего хода; 4 — рычаг переключения диапазонов (Р — рабочий, Т — транспортный); 5 — фильтр тонкой очистки; 6 — место подсоединения выхода из насоса на магистральный фильтр; 7 — место подсоединения входа из магистрального фильтра в ГМП; 8 — место подсоединения выхода из ГМП в теплообменник; 9 — место подсоединения входа из теплообменника в ГМП; 10 — заливной трубопровод; 11 — щуп; 12 — место подсоединения прибора измерения главного давления; 13 — датчик прибора измерения температуры; 14 — место подсоединения прибора измерения давления смазки; 15 — отдушина; 16 — пробка сливная; 17 — коробка передач; 18 — насос; 19 — блок клапанов; 20 — распределитель; 21 — клапан смазки; 22 — всасывающий трубопровод; 23 — плита; 24 — гидротрансформатор; 25 — место подсоединения прибора измерения давления на выходе из ГТ; 26 — место подключения диагностического манометра I (III) передачи ПХ; 27 — место подключения диагностического манометра II (IV) передачи ПХ; 28 — место подключения диагностического манометра передач ЗХ; 29 — место подсоединения прибора для измерения давления на входе в ГТ.

Рис.9 — Гидромеханическая передача фронтальных погрузчиков ТО-18/ТО-18Б Амкодор 333 со стояночным тормозом.
1 — место подсоединения входа насоса гидросистемы тормозов; 2 — место подсоединения выхода насоса гидросистемы тормозов; 3 — диск стояночного тормоза; 4 — тормозной механизм. 

Риc.10 — ГМП ТО-18/ТО-18Б Амкодор 333 с электропереключением передач, стояночным тормозом, с отключением моста.

1 — тормозной диск; 2 — крышка подшипника промежуточного вала; 3 — кронштейн тормозного механизма; Трансп. — транспортный диапазон; Раб. — рабочий диапазон; Откл. — привод моста отключен; Вкл. — привод моста включен; Зх — электромагнит включения заднего хода; 1пх — электромагнит включения первой передачи переднего хода; 2пх — электромагнит включения второй передачи переднего хода.

Рис.11 — Гидромеханическая передача фронтальных погрузчиков ТО-18/ТО-18Б Амкодор 333 с дополнительным редуктором/

1 — шестерня; 2 — шестерня; 3 — вал отключаемый; 4 — корпус редуктора; 5 — крышка корпуса; 6 — отключаемый выходной вал КП

 

Рис. 12 — ГМП с оппозитным выходным валом

1 — вал выходной; 2 — вал турбинный; 3 — ступица реактора; 4 — картер ГТ; 5 — крышка картера ГТ

Эксплуатация трансмиссии погрузчика ТО-18 (Амкодор 333)

Для обеспечения длительной и безотказной работы трансмиссии погрузчика ТО-18/ТО-18Б Амкодор 333 необходимо следить за надежным креплением ее составных частей, за уровнем масла в гидросистеме гидромеханической передаче ГМП, в картеpax POM и ведущих мостов, проверять герметичность соединений трубопроводов и стыков картеров, не допускать утечек масла и попадания воздуха в гидросистему ГМП, своевременно заменять фильтроэлементы фильтров гидросистемы ГМП и промывать фильтрующую сетку поддона картера ГМП.

При повышении температуры масла в гидросистеме ГМП выше 100 °С, снижении давле­ния во фрикционах ГМП, а также при появлении стуков и ненормальных шумов прекратить работу, установить и по возможности устранить причину неисправности. Во избежание поломки зубчатой муфты коробки передач погрузчика ТО-18/ТО-18Б Амкодор 333 переключение диапазонов производить при остановленной машине при минимальной частоте вращения коленчатого вала дизеля. Использовать стояночный тормоз при движении допускается только в аварийных случаях при отказе основной тормозной системы. При остановке погрузчика установить все органы управления в нейтральное положение, включить кран стояночного тормоза. Переключать ступени коробки передач ТО-18/ТО-18Б Амкодор 333 следует в строгой последовательности. Ступени заднего хода включать только после полной остановки машины.

При переходе с низших ступеней на высшие производить промежуточное снижение частоты вращения коленчато­го вала дизеля. Переход с высших ступеней на низшие производить без снижения частоты вращения. Не пытайтесь затормозить погрузчик с остановленным дизелем включением ступеней КПП, так как при этом механическая связь между ведущими колесами и дизелем отсутствует из-за наличия гидротрансформатора. В процессе эксплуатации следует постоянно контролировать работу ГМП ТО-18/ТО-18Б Амкодор 333 по показаниям приборов.

Регулировку ГМП и ее гидросистемы в эксплуатации производят специально обученным персоналом.

Добавить комментарий

Ваш адрес email не будет опубликован. Обязательные поля помечены *